Zum Inhalt springen

Feuerwehr Buchholz, Groß Disnack und Pogeez

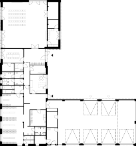
Neubau Freiwillige Feuerwehr der Gemeinden Buchholz, Groß Disnack und Pogeez

Ausführung: 2018 -2021
Leistungsphasen:  1 – 9
Bruttogeschossfläche: 911 qm
Bruttorauminhalt: 5243 cbm

Hier geht es zum Wettbewerbsbeitrag.

Grundriss
Lageplan
Schnitt